Plan de maison Farmhouse Moderne, plafond cathédrale poutres de bois, cuisine extérieure abritée, foyer
Vue arrière - MODÈLE DE BASE
Vue avant - MODÈLE DE BASE
Vue intérieure
Version couleur no. 2 - Vue avant
Version couleur no. 3 - Vue avant
Version couleur no. 2 - Vue arrière
Version couleur no. 3 - Vue arrière
Visite virtuelle
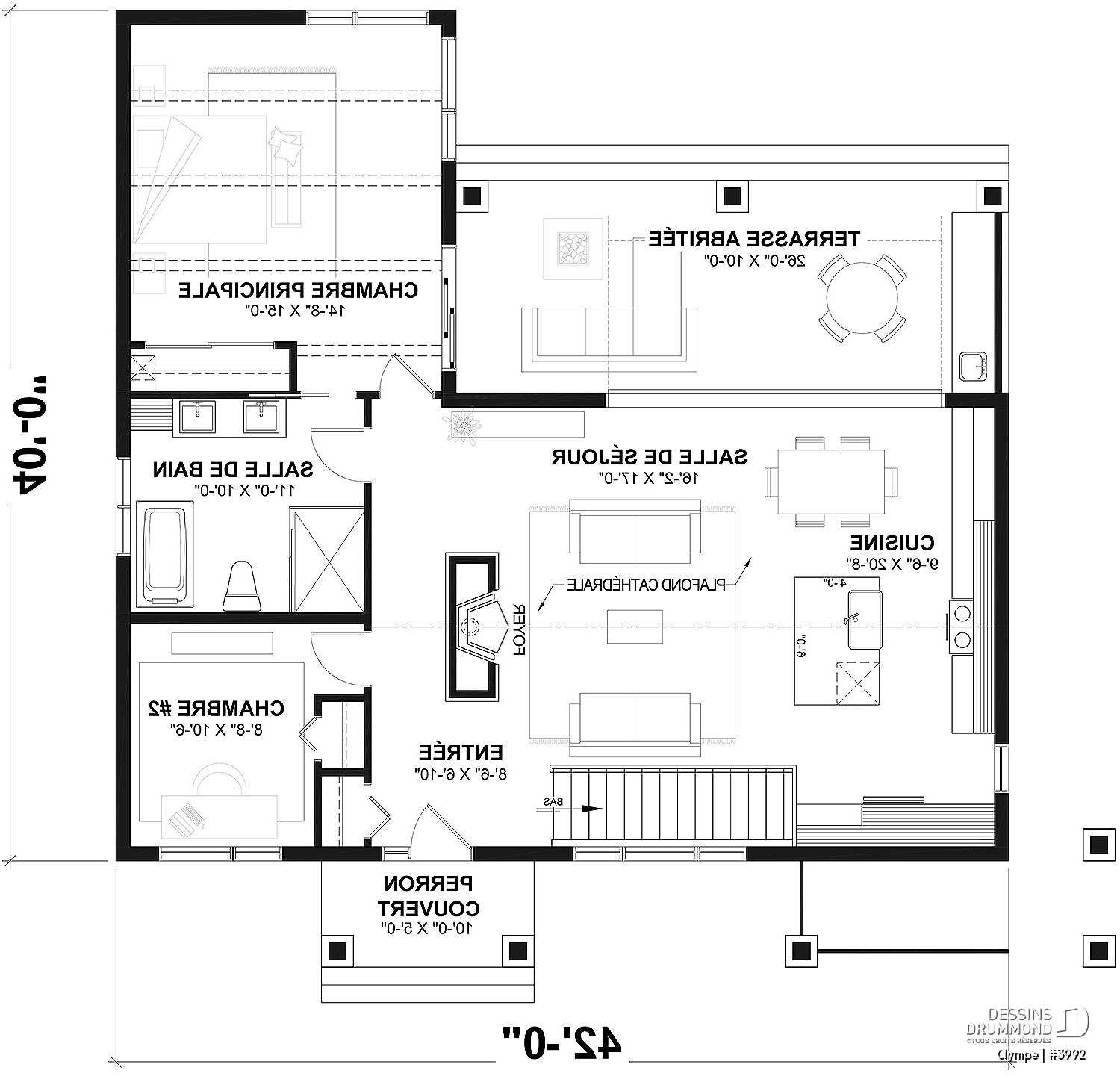
Vue par plancher
| Rez-de-chaussée | ||||
| Pièces | Dimensions | Plafond | ||
| Chambre à coucher | 14'9" x 15'0" | ~ 9'0" | ||
| Garde-robe | 7'6" x 2'0" | ~ 9'0" | ||
| Chambre à coucher | 8'8" x 10'8" | ~ 9'0" | ||
| Garde-robe | 2'0" x 3'0" | ~ 9'0" | ||
| Salle de bain complète | 11'0" x 10'0" | ~ 9'0" | ||
| Salle de séjour/salle à manger | 25'8" x 20'9" | ~ 16'0" | ||
| Perron abrité | 26'0" x 10'0" | ~ 0'0" | ||
| Garde-robe | 2'0" x 3'8" | ~ 9'0" | ||
| Perron abrité | 10'0" x 5'0" | ~ 0'0" | ||
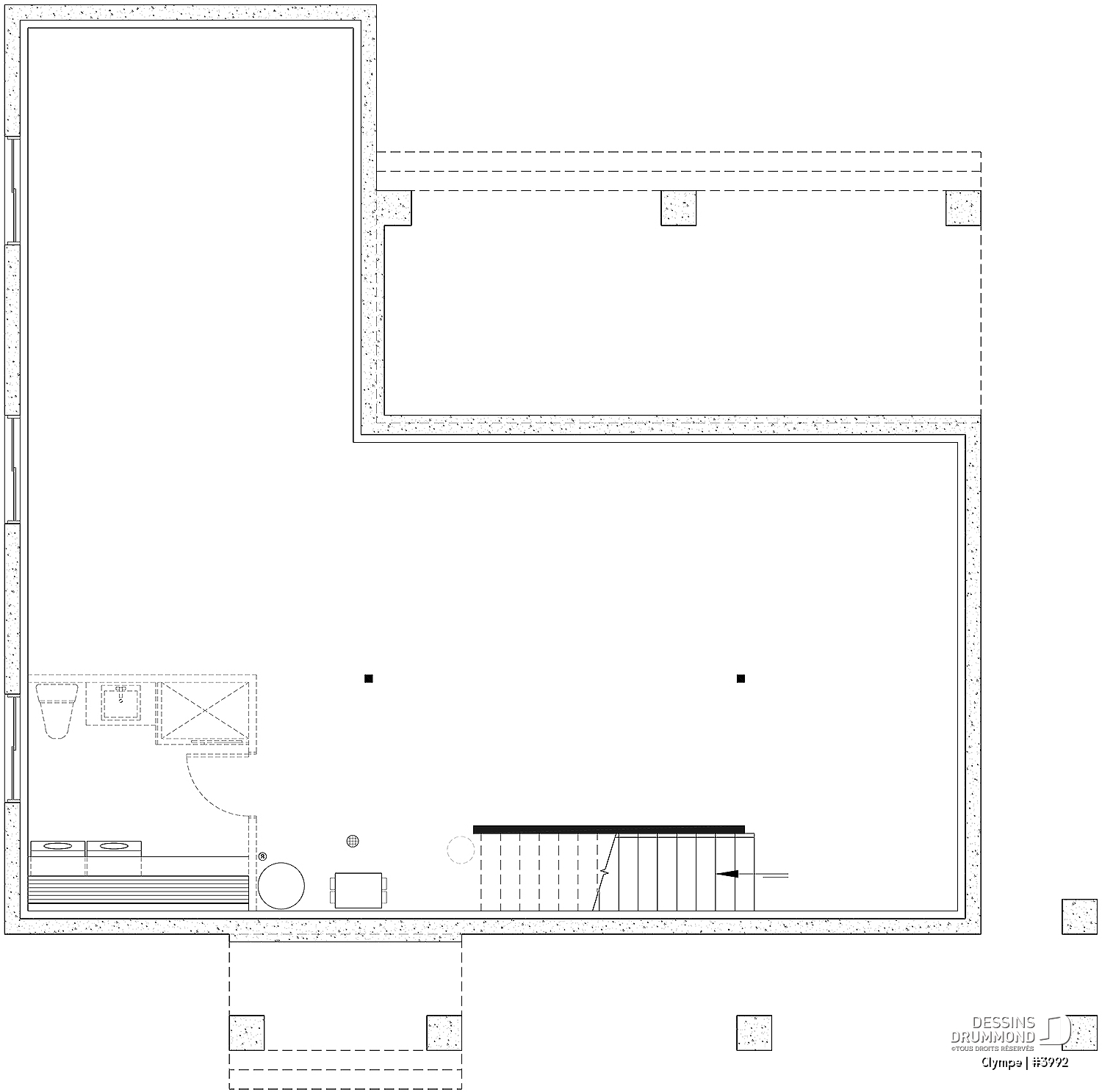
| Sous-sol aménageable | ||||
| Sous-sol aménagé | ||||
| Pièces | Dimensions | Plafond | ||
| Salle familiale | 15'4" x 16'6" | ~ 8'0" | ||
| Chambre à coucher | 14'0" x 12'4" | ~ 8'0" | ||
| Garde-robe | 7'8" x 2'0" | ~ 8'0" | ||
| Salle de lavage | 10'0" x 6'8" | ~ 8'0" | ||
| Salle de bain | 10'0" x 5'0" | ~ 8'0" | ||
| Chambre à coucher | 13'8" x 10'4" | ~ 8'0" | ||
| Garde-robe | 6'10" x 2'0" | ~ 8'0" | ||
| Pièce de mécanique | 8'0" x 10'4" | ~ 8'0" | ||
| Rangement | 10'0" x 4'6" | ~ 8'0" | ||
Estimation
| Estimation des coûts approx. de construction | 252,762$ à 361,089$ |
Spécifications générales
| Surface aménagée totale | 1212 pi2 |
| Rez-de-chaussée | 1212 pi2 |
| Sous-sol aménagé | 1212 pi2 |
| Sous-sol aménageable | 1212 pi2 |
| Largeur | 42'0" |
| Profondeur | 40'0" |
| Hauteur dessus fondations au faite | 22'2" |
| Murs extérieurs | 2 X 6 |
| Type de fondation | Sous-sol aménageable |
| Code Entrepreneur | C |
Spécifications sur les pièces
| Chambre(s) | 2, 3, 4 |
| Salle(s) de bain complète(s) | 2 |
| Demi Salle(s) de Bain | - |
| Type de garage | - |
| Espace boni aménageable | - |
| Rangement boni | - |
| Estimation des coûts approx. de construction | 252,762$ à 361,089$ i |
| Surface aménagée totale | 1212 pi2 |
| Rez-de-chaussée | 1212 pi2 |
| Sous-sol aménageable | 1212 pi2 |
| Sous-sol aménagé | 1212 pi2 |
| Largeur | 42'0" |
| Profondeur | 40'0" |
| Hauteur dessus fondations au faite | 22'2" |
| Murs extérieurs | 2 X 6 |
| Type de fondation | Sous-sol aménageable i |
Vue avant
Note: Ces photos représentent une version modifiée, non-disponible à la vente, du plan d'origine duquel elles proviennent. Veuillez consulter l'un de nos 31 bureaux si vous souhaitez obtenir des modifications au plan d'origine de ce modèle.
Vue avant
Note: Ces photos représentent une version modifiée, non-disponible à la vente, du plan d'origine duquel elles proviennent. Veuillez consulter l'un de nos 31 bureaux si vous souhaitez obtenir des modifications au plan d'origine de ce modèle.
Vue avant
Note: Ces photos représentent une version modifiée, non-disponible à la vente, du plan d'origine duquel elles proviennent. Veuillez consulter l'un de nos 31 bureaux si vous souhaitez obtenir des modifications au plan d'origine de ce modèle.
Vue avant
Note: Ces photos représentent une version modifiée, non-disponible à la vente, du plan d'origine duquel elles proviennent. Veuillez consulter l'un de nos 31 bureaux si vous souhaitez obtenir des modifications au plan d'origine de ce modèle.
Vue avant
Note: Ces photos représentent une version modifiée, non-disponible à la vente, du plan d'origine duquel elles proviennent. Veuillez consulter l'un de nos 31 bureaux si vous souhaitez obtenir des modifications au plan d'origine de ce modèle.
Vue avant
Note: Ces photos représentent une version modifiée, non-disponible à la vente, du plan d'origine duquel elles proviennent. Veuillez consulter l'un de nos 31 bureaux si vous souhaitez obtenir des modifications au plan d'origine de ce modèle.
Vue arrière
Note: Ces photos représentent une version modifiée, non-disponible à la vente, du plan d'origine duquel elles proviennent. Veuillez consulter l'un de nos 31 bureaux si vous souhaitez obtenir des modifications au plan d'origine de ce modèle.
Salle de bain
Note: Ces photos représentent une version modifiée, non-disponible à la vente, du plan d'origine duquel elles proviennent. Veuillez consulter l'un de nos 31 bureaux si vous souhaitez obtenir des modifications au plan d'origine de ce modèle.
Salle de bain
Note: Ces photos représentent une version modifiée, non-disponible à la vente, du plan d'origine duquel elles proviennent. Veuillez consulter l'un de nos 31 bureaux si vous souhaitez obtenir des modifications au plan d'origine de ce modèle.
Salle de bain
Note: Ces photos représentent une version modifiée, non-disponible à la vente, du plan d'origine duquel elles proviennent. Veuillez consulter l'un de nos 31 bureaux si vous souhaitez obtenir des modifications au plan d'origine de ce modèle.
Salle de bain
Note: Ces photos représentent une version modifiée, non-disponible à la vente, du plan d'origine duquel elles proviennent. Veuillez consulter l'un de nos 31 bureaux si vous souhaitez obtenir des modifications au plan d'origine de ce modèle.
Cuisine
Note: Ces photos représentent une version modifiée, non-disponible à la vente, du plan d'origine duquel elles proviennent. Veuillez consulter l'un de nos 31 bureaux si vous souhaitez obtenir des modifications au plan d'origine de ce modèle.
Cuisine
Note: Ces photos représentent une version modifiée, non-disponible à la vente, du plan d'origine duquel elles proviennent. Veuillez consulter l'un de nos 31 bureaux si vous souhaitez obtenir des modifications au plan d'origine de ce modèle.
Salon
Note: Ces photos représentent une version modifiée, non-disponible à la vente, du plan d'origine duquel elles proviennent. Veuillez consulter l'un de nos 31 bureaux si vous souhaitez obtenir des modifications au plan d'origine de ce modèle.
Salon
Note: Ces photos représentent une version modifiée, non-disponible à la vente, du plan d'origine duquel elles proviennent. Veuillez consulter l'un de nos 31 bureaux si vous souhaitez obtenir des modifications au plan d'origine de ce modèle.
Salon
Note: Ces photos représentent une version modifiée, non-disponible à la vente, du plan d'origine duquel elles proviennent. Veuillez consulter l'un de nos 31 bureaux si vous souhaitez obtenir des modifications au plan d'origine de ce modèle.
Salon
Note: Ces photos représentent une version modifiée, non-disponible à la vente, du plan d'origine duquel elles proviennent. Veuillez consulter l'un de nos 31 bureaux si vous souhaitez obtenir des modifications au plan d'origine de ce modèle.
Salle à manger
Note: Ces photos représentent une version modifiée, non-disponible à la vente, du plan d'origine duquel elles proviennent. Veuillez consulter l'un de nos 31 bureaux si vous souhaitez obtenir des modifications au plan d'origine de ce modèle.
Terrasse
Note: Ces photos représentent une version modifiée, non-disponible à la vente, du plan d'origine duquel elles proviennent. Veuillez consulter l'un de nos 31 bureaux si vous souhaitez obtenir des modifications au plan d'origine de ce modèle.
Secteur activité
Note: Ces photos représentent une version modifiée, non-disponible à la vente, du plan d'origine duquel elles proviennent. Veuillez consulter l'un de nos 31 bureaux si vous souhaitez obtenir des modifications au plan d'origine de ce modèle.
Secteur activité
Note: Ces photos représentent une version modifiée, non-disponible à la vente, du plan d'origine duquel elles proviennent. Veuillez consulter l'un de nos 31 bureaux si vous souhaitez obtenir des modifications au plan d'origine de ce modèle.
Description
Rez-de-chaussée: Entrée, salle de séjour, cuisine et salle à dîner, chambres des maîtres, chambre secondaire et salle de bain complète. Terrasse abritée pour cuisine extérieure et coin lounge. Salle de lavage prévue au sous-sol. Sous-sol à aménager. NOTE: Piscine non incluse ;-) et à clôturer si vous décidez d'en ajouter une! --- *Sous-sol aménagé (optionnel $): 2 chambres, salle familiale, salle de bain, salle de lavage avec chute à linge, rangement et pièce mécanique. --- *Si vous souhaitez acheter le plan du sous-sol aménagé, tel que présenté sur la page de ce plan, veuillez sélectionner cette option dans le panier d'achat, dans la section "Sélectionner votre fondation". Si vous ne sélectionnez pas cette option, vous recevrez le sous-sol non fini, sans frais additionnel.
Autres informations utiles sur ce plan
Plan de maison plain-pied scandinave OLYMPE (#3992) avec plafond cathédrale, 3 chambres et terrasse couverte
Le plan de maison OLYMPE (plan #3992) séduit au premier regard par son allure d’inspiration scandinave, élégante et intemporelle. Que vous l’imaginiez en bord de lac ou au pied d’une montagne de ski, ce plain-pied évoque immédiatement le chalet douillet où il fait bon entrer, été comme hiver.
Sa façade épurée, au style contemporain, attire par sa simplicité nordique qui laisse toute la place aux matériaux et aux volumes. Ce modèle, bien pensé, se distingue des autres plain-pieds grâce à sa grande porte de garage intégrée, permettant d’accéder directement à la salle familiale et à la terrasse. Conçu pour les amoureux de la nature, ce plan allie modernité, confort et convivialité, tout en pouvant facilement recevoir des panneaux solaires pour un mode de vie écoresponsable.
À l’intérieur, le cœur de la maison impressionne. Le salon, la cuisine et la salle à manger se déploient dans une vaste aire ouverte, baignée de lumière naturelle grâce aux immenses fenêtres et aux plafonds cathédraux atteignant 12 pieds de hauteur. Les poutres de bois apparentes renforcent l’ambiance chaleureuse et donnent encore plus de caractère à cet espace. Une porte de garage s’ouvre directement sur la grande terrasse couverte, où vous attendent une cuisine extérieure et un coin lounge idéal pour les repas en famille ou les soirées entre amis. Été comme hiver, cette terrasse protégée deviendra sans aucun doute le lieu de rassemblement préféré de tous.
La chambre principale, véritable cocon, profite d’un accès privé à la terrasse et communique directement avec une salle de bain complète, élégante et pratique, incluant douche séparée et baignoire. Avec son foyer central au salon pour les soirées d’hiver et sa terrasse couverte pour les beaux jours, le plan OLYMPE réunit tout ce qu’il faut pour une vie confortable et inspirante.
---
*Sous-sol aménagé (optionnel $):
Deux chambres secondaires confortables et lumineuses, idéales pour les enfants, les invités ou même un bureau à domicile.
Salle familiale spacieuse pouvant aussi servir de salle de jeux, parfaite pour les moments de détente, les soirées cinéma ou les activités en famille.
Salle de bain complète et salle de lavage fonctionnelle, avec une chute à linge ingénieuse directement reliée à la chambre principale, rendant les tâches quotidiennes plus simples et pratiques.
*Si vous souhaitez acheter le plan du sous-sol aménagé, tel que présenté sur la page de ce plan, veuillez sélectionner cette option dans le panier d'achat, dans la section "Sélectionner votre fondation". Si vous ne sélectionnez pas cette option, vous recevrez le sous-sol non fini, sans frais additionnel.
---
À NOTER:
Les poutres apparentes décoratives sont estimées à approx. 25,000$ à 30,000$ et ne sont pas incluses dans le coût de construction sur le site.
---
Ce plan fait partie d’une collection de 3 modèles dont voici les principales caractéristiques :
Plan # 3992 : modèle de base avec 1212 pieds carrés, sans garage, 2 chambres, salle de lavage prévue au sous-sol. UN PLAN DE SOUS-SOL AMÉNAGÉ EST OFFERT EN OPTION ($).
Plan # 3992-V1 : plancher exactement comme le modèles de base (# 3992), mais avec garage, 2 chambres, buanderie au sous-sol.
Plan # 3992-V2 : modèle agrandie à 1604 pieds carrés, avec garage, 3 chambres, buanderie au rez-de-chaussée.
Éléments distinctifs
Maison chalet de style plain pied rustique.
Porte de garage prévue afin d'accéder à la grande terrasse couverte.
Cuisine extérieure et coin lounge aménagés sur la terrasse.
Plafond cathédrale ±16' (max) au séjour, cuisine et salle à dîner, avec poutres de bois exposées pour un look rustique.
Plafond à 9' aux chambres et salle de bain.
Salle de séjour avec foyer.
Grand îlot à la cuisine.
Chambre des maîtres avec accès privé à la terrasse arrière et à la salle de bain.
Salle de bain complète avec bain et grande douche séparés.
Sous-sol à aménager.
---
*Sous-sol aménagé (optionnel $):
2 chambres secondaires.
Salle familiale ou salle de jeux.
Salle de bain et salle de lavage avec pratique chute à linge provenant de la chambre principale du rez-de-chaussée.
---
*Si vous souhaitez acheter le plan du sous-sol aménagé, tel que présenté sur la page de ce plan, veuillez sélectionner cette option dans le panier d'achat, dans la section "Sélectionner votre fondation". Si vous ne sélectionnez pas cette option, vous recevrez le sous-sol non fini, sans frais additionnel.
Notes légales
Ce modèle est protégé par la Loi sur les Droits d'Auteur.
De plus, les illustrations présentées peuvent différer du plan détaillé que vous recevrez, car ces derniers sont régulièrement ajustés afin de respecter les normes de construction en vigueur.
Autres informations utiles sur ce plan
Description complète
Plan de maison plain-pied scandinave OLYMPE (#3992) avec plafond cathédrale, 3 chambres et terrasse couverte
Le plan de maison OLYMPE (plan #3992) séduit au premier regard par son allure d’inspiration scandinave, élégante et intemporelle. Que vous l’imaginiez en bord de lac ou au pied d’une montagne de ski, ce plain-pied évoque immédiatement le chalet douillet où il fait bon entrer, été comme hiver.
Sa façade épurée, au style contemporain, attire par sa simplicité nordique qui laisse toute la place aux matériaux et aux volumes. Ce modèle, bien pensé, se distingue des autres plain-pieds grâce à sa grande porte de garage intégrée, permettant d’accéder directement à la salle familiale et à la terrasse. Conçu pour les amoureux de la nature, ce plan allie modernité, confort et convivialité, tout en pouvant facilement recevoir des panneaux solaires pour un mode de vie écoresponsable.
À l’intérieur, le cœur de la maison impressionne. Le salon, la cuisine et la salle à manger se déploient dans une vaste aire ouverte, baignée de lumière naturelle grâce aux immenses fenêtres et aux plafonds cathédraux atteignant 12 pieds de hauteur. Les poutres de bois apparentes renforcent l’ambiance chaleureuse et donnent encore plus de caractère à cet espace. Une porte de garage s’ouvre directement sur la grande terrasse couverte, où vous attendent une cuisine extérieure et un coin lounge idéal pour les repas en famille ou les soirées entre amis. Été comme hiver, cette terrasse protégée deviendra sans aucun doute le lieu de rassemblement préféré de tous.
La chambre principale, véritable cocon, profite d’un accès privé à la terrasse et communique directement avec une salle de bain complète, élégante et pratique, incluant douche séparée et baignoire. Avec son foyer central au salon pour les soirées d’hiver et sa terrasse couverte pour les beaux jours, le plan OLYMPE réunit tout ce qu’il faut pour une vie confortable et inspirante.
---
*Sous-sol aménagé (optionnel $):
Deux chambres secondaires confortables et lumineuses, idéales pour les enfants, les invités ou même un bureau à domicile.
Salle familiale spacieuse pouvant aussi servir de salle de jeux, parfaite pour les moments de détente, les soirées cinéma ou les activités en famille.
Salle de bain complète et salle de lavage fonctionnelle, avec une chute à linge ingénieuse directement reliée à la chambre principale, rendant les tâches quotidiennes plus simples et pratiques.
*Si vous souhaitez acheter le plan du sous-sol aménagé, tel que présenté sur la page de ce plan, veuillez sélectionner cette option dans le panier d'achat, dans la section "Sélectionner votre fondation". Si vous ne sélectionnez pas cette option, vous recevrez le sous-sol non fini, sans frais additionnel.
---
À NOTER:
Les poutres apparentes décoratives sont estimées à approx. 25,000$ à 30,000$ et ne sont pas incluses dans le coût de construction sur le site.
---
Ce plan fait partie d’une collection de 3 modèles dont voici les principales caractéristiques :
Plan # 3992 : modèle de base avec 1212 pieds carrés, sans garage, 2 chambres, salle de lavage prévue au sous-sol. UN PLAN DE SOUS-SOL AMÉNAGÉ EST OFFERT EN OPTION ($).
Plan # 3992-V1 : plancher exactement comme le modèles de base (# 3992), mais avec garage, 2 chambres, buanderie au sous-sol.
Plan # 3992-V2 : modèle agrandie à 1604 pieds carrés, avec garage, 3 chambres, buanderie au rez-de-chaussée.
Éléments distinctifs
Maison chalet de style plain pied rustique.
Porte de garage prévue afin d'accéder à la grande terrasse couverte.
Cuisine extérieure et coin lounge aménagés sur la terrasse.
Plafond cathédrale ±16' (max) au séjour, cuisine et salle à dîner, avec poutres de bois exposées pour un look rustique.
Plafond à 9' aux chambres et salle de bain.
Salle de séjour avec foyer.
Grand îlot à la cuisine.
Chambre des maîtres avec accès privé à la terrasse arrière et à la salle de bain.
Salle de bain complète avec bain et grande douche séparés.
Sous-sol à aménager.
---
*Sous-sol aménagé (optionnel $):
2 chambres secondaires.
Salle familiale ou salle de jeux.
Salle de bain et salle de lavage avec pratique chute à linge provenant de la chambre principale du rez-de-chaussée.
---
*Si vous souhaitez acheter le plan du sous-sol aménagé, tel que présenté sur la page de ce plan, veuillez sélectionner cette option dans le panier d'achat, dans la section "Sélectionner votre fondation". Si vous ne sélectionnez pas cette option, vous recevrez le sous-sol non fini, sans frais additionnel.






























