Modèle genre chalet de ski, terrasse abritée, 3 chambres, 2 s. bain, aire ouverte, rangement pour ski
Vue arrière - MODÈLE DE BASE
Élévation gauche
Élévation avant
Élévation arrière
Version couleur no. 2 - Vue arrière
Version couleur no. 4 - Vue arrière
Version couleur no. 5 - Vue arrière
| Sous-sol | ||||
| Pièces | Dimensions | Plafond | ||
| Chambre à coucher | 13'0" x 13'0" | ~ 8'0" | ||
| Walk-in | 5'10" x 3'0" | ~ 8'0" | ||
| Chambre à coucher | 12'8" x 11'4" | ~ 8'0" | ||
| Garde-robe | 2'0" x 4'6" | ~ 8'0" | ||
| Chambre à coucher | 12'8" x 10'0" | ~ 8'0" | ||
| Douche | 2'0" x 4'6" | ~ 8'0" | ||
| Salle de bain/buanderie | 11'6" x 5'2" | ~ 8'0" | ||
| Douche en cabine | 5'0" x 3'0" | ~ 8'0" | ||
| Salle familiale | 18'4" x 13'8" | ~ 8'0" | ||
| Pièce de mécanique | 3'8" x 6'6" | ~ 8'0" | ||
| Coin laveuse/sécheuse | 5'0" x 3'0" | ~ 8'0" | ||
| Rez-de-chaussée | ||||
| Pièces | Dimensions | Plafond | ||
| Terrasse abritée | 14'0" x 14'0" | ~ 0'0" | ||
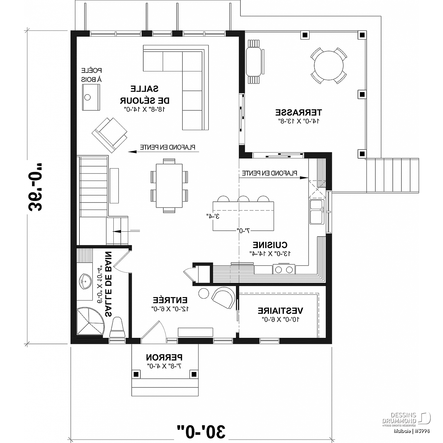
| Cuisine | 13'0" x 14'4" | ~ 8'0" | ||
| Vestiaire | 10'0" x 6'0" | ~ 8'0" | ||
| Entrée ou vestibule | 12'0" x 6'0" | ~ 13'0" | ||
| Salle de séjour | 18'8" x 14'0" | ~ 8'0" | ||
| Salle à manger | 12'8" x 12'0" | ~ 8'0" | ||
| Salle de douche | 6'0" x 10'4" | ~ 8'0" | ||
| Lingerie | 1'8" x 2'0" | ~ 8'0" | ||
Estimation
| Estimation des coûts approx. de construction |
Spécifications générales
| Surface aménagée totale | 2085 pi2 |
| Rez-de-chaussée | 940 pi2 |
| Sous-sol | 1145 pi2 |
| Largeur | 34'0" |
| Profondeur | 36'0" |
| Hauteur dessus fondations au faite | 21'10" |
| Murs extérieurs | 2 X 6 |
| Type de fondation | Sous-sol aménagé + sortie extérieure (Rez-de-jardin) |
| Code Entrepreneur | E |
Spécifications sur les pièces
| Chambre(s) | 3 |
| Salle(s) de bain complète(s) | 2 |
| Demi Salle(s) de Bain | - |
| Type de garage | - |
| Espace boni aménageable | - |
| Rangement boni | - |
Description
Rez-de-jardin: 3 chambres, salle de bain avec laveuse-sécheuse, salle familiale, rangement. Rez-de-chaussée: Garde-robe de type walk-in,salle de douche, cuisine, salle à manger, salon, terrasse
Autres informations utiles sur ce plan
Plan de maison ou chalet parfait pour la montagne ou terrain avec vue panoramique
Superbe chalet tout en lumière au rez-de-chaussée proposant un plafond cathédral, deux portes-patios, un plancher à aire ouverte et une grande terrasse extérieure abritée. D’allure en bois rustique, le nouveau plan de chalet # 3998 de Dessins Drummond, aussi nommé Malbaie, s’intègre parfaitement à tout terrain en nature et à la campagne.
L’entrée propose une grande garde-robe de type walk-in, idéale pour le rangement de vos accessoires de sport tels ski, planche à neige, vélo et autres. De plus ce secteur, en retrait de la cuisine, inclut une salle de douche, pratique pour le retour à la maison.
La cuisine est ouverte sur la salle à manger, et le salon, et on y retrouve un grand îlot et un pratique accès à la terrasse abritée, rendant les repas à l’extérieur plus agréable. La grande terrasse a un format de 14’ x 14’ ce qui permet d’y aménager aisément une table pour 6 personnes et un BBQ.
Au sous-sol de ce plan de chalet en rez-de-jardin, vous retrouvez 3 grandes chambres à coucher, une grande salle de bain proposant bain et douche séparés ainsi qu’un coin laveuse/sécheuse, et un rangement.
Vous aimez ce modèle mais souhaitez y apporter quelques ajustements comme l’ajout d’un garage ou un agrandissement? Veuillez nous joindre afin d’obtenir votre estimation gratuite pour la modification de votre plan qui est possible via nos 22 bureaux régionaux, ou en ligne.
Éléments distinctifs
Plan de chalet de ski ou pour terrain avec vue panoramique, de style rustique.
3 chambres de bon format et 2 salles de bain.
Plafond cathédrale au rez-de-chaussée.
Grand garde-robe de type walk-in pour rangement des accessoires de sport.
Salle de douche et salle de bain complète.
Cuisine avec îlot central et ouverte sur la salle à manger et la salon.
Superbe fenestration partout au rez-de-chaussée.
Foyer au salon.
Grande terrasse abritée.
Notes légales
Ce modèle est protégé par la Loi sur les Droits d'Auteur.
De plus, les illustrations présentées peuvent différer du plan détaillé que vous recevrez, car ces derniers sont régulièrement ajustés afin de respecter les normes de construction en vigueur.
Autres informations utiles sur ce plan
Description complète
Plan de maison ou chalet parfait pour la montagne ou terrain avec vue panoramique
Superbe chalet tout en lumière au rez-de-chaussée proposant un plafond cathédral, deux portes-patios, un plancher à aire ouverte et une grande terrasse extérieure abritée. D’allure en bois rustique, le nouveau plan de chalet # 3998 de Dessins Drummond, aussi nommé Malbaie, s’intègre parfaitement à tout terrain en nature et à la campagne.
L’entrée propose une grande garde-robe de type walk-in, idéale pour le rangement de vos accessoires de sport tels ski, planche à neige, vélo et autres. De plus ce secteur, en retrait de la cuisine, inclut une salle de douche, pratique pour le retour à la maison.
La cuisine est ouverte sur la salle à manger, et le salon, et on y retrouve un grand îlot et un pratique accès à la terrasse abritée, rendant les repas à l’extérieur plus agréable. La grande terrasse a un format de 14’ x 14’ ce qui permet d’y aménager aisément une table pour 6 personnes et un BBQ.
Au sous-sol de ce plan de chalet en rez-de-jardin, vous retrouvez 3 grandes chambres à coucher, une grande salle de bain proposant bain et douche séparés ainsi qu’un coin laveuse/sécheuse, et un rangement.
Vous aimez ce modèle mais souhaitez y apporter quelques ajustements comme l’ajout d’un garage ou un agrandissement? Veuillez nous joindre afin d’obtenir votre estimation gratuite pour la modification de votre plan qui est possible via nos 22 bureaux régionaux, ou en ligne.
Éléments distinctifs
Plan de chalet de ski ou pour terrain avec vue panoramique, de style rustique.
3 chambres de bon format et 2 salles de bain.
Plafond cathédrale au rez-de-chaussée.
Grand garde-robe de type walk-in pour rangement des accessoires de sport.
Salle de douche et salle de bain complète.
Cuisine avec îlot central et ouverte sur la salle à manger et la salon.
Superbe fenestration partout au rez-de-chaussée.
Foyer au salon.
Grande terrasse abritée.








