Belle de style scandinave minimaliste, 4 chambres + bureau, sous-sol aménagé
Vue avant - MODÈLE DE BASE
Vue arrière - MODÈLE DE BASE
Vue arrière - MODÈLE DE BASE
Vue intérieure
Vue intérieure
                                                
                                                
                                                
                                                
                                                
                                                
                                                
                                                
                                                
                                                
                                                Vue par plancher
| Rez-de-chaussée | ||||
| Pièces | Dimensions | Plafond | ||
| Perron abrité | 9'6" x 5'6" | ~ 8'10" | ||
| Bureau à domicile | 8'10" x 10'8" | ~ 9'0" | ||
| Garde-robe | 2'0" x 3'8" | ~ 9'0" | ||
| Entrée ou vestibule | 7'8" x 6'8" | ~ 9'0" | ||
| Coin toilette/lavabo | 7'2" x 2'10" | ~ 9'0" | ||
| Cuisine | 13'0" x 17'8" | ~ 9'0" | ||
| Garde-manger | 5'2" x 6'8" | ~ 9'0" | ||
| Îlot | 4'0" x 9'0" | ~ 0'0" | ||
| Salle de séjour | 15'6" x 16'0" | ~ 9'0" | ||
| Terrasse abritée | 15'6" x 10'0" | ~ 8'10" | ||
| Salle à manger | 14'8" x 10'0" | ~ 15'0" | ||
| Vestiaire | 3'6" x 6'8" | ~ 9'0" | ||
| Étage | ||||
| Pièces | Dimensions | Plafond | ||
| Chambre à coucher | 10'2" x 10'4" | ~ 8'0" | ||
| Garde-robe | 6'2" x 2'0" | ~ 8'0" | ||
| Chambre à coucher | 10'2" x 10'4" | ~ 8'0" | ||
| Garde-robe | 6'2" x 2'0" | ~ 8'0" | ||
| Salle de lavage | 6'6" x 6'6" | ~ 8'0" | ||
| Suite des maîtres | 14'4" x 15'8" | ~ 8'0" | ||
| Walk-in | 7'2" x 7'8" | ~ 8'0" | ||
| Salle de bain complète | 8'0" x 15'8" | ~ 8'0" | ||
| Salle de bain | 7'0" x 7'6" | ~ 8'0" | ||
| Douche | 4'0" x 3'0" | ~ 0'0" | ||
| Lingerie | 1'4" x 1'10" | ~ 0'0" | ||
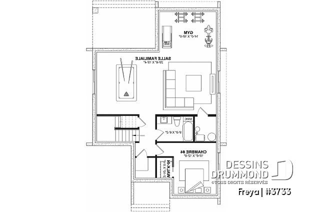
| Sous-sol aménagé (Optionel $) | ||||
| Pièces | Dimensions | Plafond | ||
| Salle de bain | 9'0" x 6'2" | ~ 8'0" | ||
| Chambre à coucher | 10'6" x 12'8" | ~ 8'0" | ||
| Walk-in | 3'10" x 5'0" | ~ 8'0" | ||
| Rangement | 5'0" x 5'0" | ~ 8'0" | ||
| Salle familiale | 29'6" x 15'4" | ~ 8'0" | ||
| Gym | 14'0" x 10'0" | ~ 8'0" | ||
| Pièce de mécanique | 5'4" x 6'2" | ~ 8'0" | ||
| Sous-sol aménageable | ||||
Estimation
| Estimation des coûts approx. de construction | 
Spécifications générales
| Surface aménagée totale | 2206 pi2 | 
| Rez-de-chaussée | 1164 pi2 | 
| Étage | 1042 pi2 | 
| Sous-sol aménagé (Optionel $) | 1164 pi2 | 
| Largeur | 34'6" | 
| Profondeur | 50'0" | 
| Hauteur dessus fondations au faite | 32'2" | 
| Murs extérieurs | 2 X 6 | 
| Type de fondation | Sous-sol aménageable | 
| Code Entrepreneur | F | 
Spécifications sur les pièces
| Chambre(s) | 5, 4 | 
| Salle(s) de bain complète(s) | 3 | 
| Demi Salle(s) de Bain | 1 | 
| Type de garage | - | 
| Espace boni aménageable | - | 
| Rangement boni | - | 
| Estimation des coûts approx. de construction | i | 
| Surface aménagée totale | 2206 pi2 | 
| Rez-de-chaussée | 1164 pi2 | 
| Étage | 1042 pi2 | 
| Sous-sol aménagé (Optionel $) | 1164 pi2 | 
| Sous-sol aménageable | 1164 pi2 | 
| Largeur | 34'6" | 
| Profondeur | 50'0" | 
| Hauteur dessus fondations au faite | 32'2" | 
| Murs extérieurs | 2 X 6 | 
| Type de fondation | Sous-sol aménageable i | 
Salle à manger
Note: Ces photos représentent une version modifiée, non-disponible à la vente, du plan d'origine duquel elles proviennent. Veuillez consulter l'un de nos 31 bureaux si vous souhaitez obtenir des modifications au plan d'origine de ce modèle.
Salle de bain
Note: Ces photos représentent une version modifiée, non-disponible à la vente, du plan d'origine duquel elles proviennent. Veuillez consulter l'un de nos 31 bureaux si vous souhaitez obtenir des modifications au plan d'origine de ce modèle.
Salle de bain
Note: Ces photos représentent une version modifiée, non-disponible à la vente, du plan d'origine duquel elles proviennent. Veuillez consulter l'un de nos 31 bureaux si vous souhaitez obtenir des modifications au plan d'origine de ce modèle.
Salle de bain
Note: Ces photos représentent une version modifiée, non-disponible à la vente, du plan d'origine duquel elles proviennent. Veuillez consulter l'un de nos 31 bureaux si vous souhaitez obtenir des modifications au plan d'origine de ce modèle.
Cuisine
Note: Ces photos représentent une version modifiée, non-disponible à la vente, du plan d'origine duquel elles proviennent. Veuillez consulter l'un de nos 31 bureaux si vous souhaitez obtenir des modifications au plan d'origine de ce modèle.
Cuisine
Note: Ces photos représentent une version modifiée, non-disponible à la vente, du plan d'origine duquel elles proviennent. Veuillez consulter l'un de nos 31 bureaux si vous souhaitez obtenir des modifications au plan d'origine de ce modèle.
Cuisine
Note: Ces photos représentent une version modifiée, non-disponible à la vente, du plan d'origine duquel elles proviennent. Veuillez consulter l'un de nos 31 bureaux si vous souhaitez obtenir des modifications au plan d'origine de ce modèle.
Cuisine
Note: Ces photos représentent une version modifiée, non-disponible à la vente, du plan d'origine duquel elles proviennent. Veuillez consulter l'un de nos 31 bureaux si vous souhaitez obtenir des modifications au plan d'origine de ce modèle.
Chambre
Note: Ces photos représentent une version modifiée, non-disponible à la vente, du plan d'origine duquel elles proviennent. Veuillez consulter l'un de nos 31 bureaux si vous souhaitez obtenir des modifications au plan d'origine de ce modèle.
Chambre
Note: Ces photos représentent une version modifiée, non-disponible à la vente, du plan d'origine duquel elles proviennent. Veuillez consulter l'un de nos 31 bureaux si vous souhaitez obtenir des modifications au plan d'origine de ce modèle.
Salon
Note: Ces photos représentent une version modifiée, non-disponible à la vente, du plan d'origine duquel elles proviennent. Veuillez consulter l'un de nos 31 bureaux si vous souhaitez obtenir des modifications au plan d'origine de ce modèle.
Salon
Note: Ces photos représentent une version modifiée, non-disponible à la vente, du plan d'origine duquel elles proviennent. Veuillez consulter l'un de nos 31 bureaux si vous souhaitez obtenir des modifications au plan d'origine de ce modèle.
Salon
Note: Ces photos représentent une version modifiée, non-disponible à la vente, du plan d'origine duquel elles proviennent. Veuillez consulter l'un de nos 31 bureaux si vous souhaitez obtenir des modifications au plan d'origine de ce modèle.
Salon
Note: Ces photos représentent une version modifiée, non-disponible à la vente, du plan d'origine duquel elles proviennent. Veuillez consulter l'un de nos 31 bureaux si vous souhaitez obtenir des modifications au plan d'origine de ce modèle.
Salle à manger
Note: Ces photos représentent une version modifiée, non-disponible à la vente, du plan d'origine duquel elles proviennent. Veuillez consulter l'un de nos 31 bureaux si vous souhaitez obtenir des modifications au plan d'origine de ce modèle.
Salle à manger
Note: Ces photos représentent une version modifiée, non-disponible à la vente, du plan d'origine duquel elles proviennent. Veuillez consulter l'un de nos 31 bureaux si vous souhaitez obtenir des modifications au plan d'origine de ce modèle.
                                                    
                                                    
                                                    
                                                    
                                                    
                                                    
                                                    
                                                    
                                                    
                                                    
                                                    
                                                    
                                                    
                                                    
                                                    
                                                    
                                                    
                                                    
                                                    
                                                    
                                                    
                                                    Description
Sous-sol aménagé: Chambre, salle de bain, salle familiale, salle d'entraînement, rangement. Rez-de-chaussée: Entrée, bureau, salle d'eau, cuisine, salle à manger et salle de séjour. Terrasse abritée. Étage: Suite parentale avec salle de bain privée, 2 chambre additionnelles, salle de douche et salle de lavage.
Autres informations utiles sur ce plan
Magnifique maison Scandinave proposant 4+ chambres et plusieurs commodités recherchées!
.
Éléments distinctifs
Maison au design épuré, de style Scandinave. 
Plafond à 9' sur tout le rez-de-chaussée sauf à la salle à manger où il est cathédrale. 
Perron abrité et entrée avec vestiaire. 
Bureau prévu près de l'entrée avant et de la salle d'eau. 
Cuisine avec garde-manger et îlot, et ouverte d'un côté sur la salle à manger et de l'autre, sur la salle de séjour. 
Salon avec foyer et fenêtres donnant sur la terrasse. 
Salle à manger très lumineuse avec plafond cathédrale et accès à la terrasse abritée. 
Salle familiale avec foyer central et tablettes aménagées de chaque côté. 
Banc aménagé à mi-chemin entre le rez-de-chaussée et l'étage. 
La suite des parents propose un secteur aménagé d'un bain et d'une douche, ainsi qu'un garde-robe de type walk-in. 
Les 2 chambres secondaires de l'étage se partagent une salle de douche. 
Une salle de lavage complète l'étage de cette maison. 
Notes légales
Ce modèle est protégé par la Loi sur les Droits d'Auteur.
De plus, les illustrations présentées peuvent différer du plan détaillé que vous recevrez, car ces derniers sont régulièrement ajustés afin de respecter les normes de construction en vigueur.
Autres informations utiles sur ce plan
Description complète
Magnifique maison Scandinave proposant 4+ chambres et plusieurs commodités recherchées!
.
Éléments distinctifs
Maison au design épuré, de style Scandinave. 
Plafond à 9' sur tout le rez-de-chaussée sauf à la salle à manger où il est cathédrale. 
Perron abrité et entrée avec vestiaire. 
Bureau prévu près de l'entrée avant et de la salle d'eau. 
Cuisine avec garde-manger et îlot, et ouverte d'un côté sur la salle à manger et de l'autre, sur la salle de séjour. 
Salon avec foyer et fenêtres donnant sur la terrasse. 
Salle à manger très lumineuse avec plafond cathédrale et accès à la terrasse abritée. 
Salle familiale avec foyer central et tablettes aménagées de chaque côté. 
Banc aménagé à mi-chemin entre le rez-de-chaussée et l'étage. 
La suite des parents propose un secteur aménagé d'un bain et d'une douche, ainsi qu'un garde-robe de type walk-in. 
Les 2 chambres secondaires de l'étage se partagent une salle de douche. 
Une salle de lavage complète l'étage de cette maison. 








                                                    
                                                    
                                                    














