Farmhouse avec sous-sol fini (optionnel $), 2 à 5 chambres et 2 salles de séjour, parfaite pour familles
Vue avant - MODÈLE DE BASE
Vue avant - MODÈLE DE BASE
Vue avant - MODÈLE DE BASE
Vue arrière - MODÈLE DE BASE
Vue arrière - MODÈLE DE BASE
Vue intérieure
Vue intérieure
Version couleur no. 1 - Vue avant
Version couleur no. 1 - Vue avant
Version couleur no. 1 - Vue avant
Version couleur no. 1 - Vue arrière
Vue par plancher
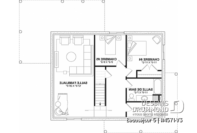
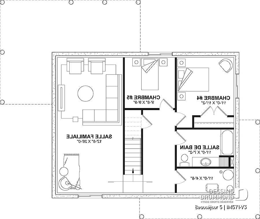
| Sous-sol aménagé (Optionel $) | ||||
| Pièces | Dimensions | Plafond | ||
| Chambre à coucher | 11'0" x 11'2" | ~ 8'0" | ||
| Garde-robe | 7'8" x 2'0" | ~ 8'0" | ||
| Chambre à coucher | 9'8" x 9'9" | ~ 8'0" | ||
| Salle de bain | 11'0" x 7'2" | ~ 8'0" | ||
| Lingerie | 1'10" x 1'10" | ~ 0'0" | ||
| Pièce de mécanique | 11'0" x 4'8" | ~ 8'0" | ||
| Salle familiale | 12'8" x 26'0" | ~ 8'0" | ||
| Rez-de-chaussée | ||||
| Pièces | Dimensions | Plafond | ||
| Perron abrité | 23'2" x 4'0" | ~ 9'4" | ||
| Salle de séjour | 13'0" x 16'0" | ~ 9'0" | ||
| Salle à manger | 18'2" x 10'8" | ~ 9'0" | ||
| Cuisine | 16'6" x 11'3" | ~ 9'0" | ||
| Îlot | 10'0" x 3'0" | ~ 0'0" | ||
| Garde-manger | 4'2" x 6'7" | ~ 9'0" | ||
| Salle de bain | 2'8" x 6'7" | ~ 9'0" | ||
| Terrasse abritée | 27'0" x 10'0" | ~ 9'4" | ||
| Vestiaire | 13'2" x 8'0" | ~ 9'0" | ||
| Entrée ou vestibule | 7'6" x 15'5" | ~ 18'6" | ||
| Étage | ||||
| Pièces | Dimensions | Plafond | ||
| Salle de bain | 14'2" x 7'6" | ~ 8'0" | ||
| Douche | 3'0" x 5'0" | ~ 0'0" | ||
| Lingerie | 2'10" x 2'6" | ~ 0'0" | ||
| Suite des maîtres | 13'0" x 16'4" | ~ 8'0" | ||
| Walk-in | 9'8" x 7'6" | ~ 8'0" | ||
| Chambre à coucher | 10'0" x 10'6" | ~ 8'0" | ||
| Garde-robe | 10'0" x 2'0" | ~ 8'0" | ||
| Chambre à coucher | 11'2" x 11'0" | ~ 8'0" | ||
| Garde-robe | 2'0" x 6'4" | ~ 8'0" | ||
| Sous-sol aménageable | ||||
Estimation
| Estimation des coûts approx. de construction | 328,816$ à 469,737$ |
Spécifications générales
| Surface aménagée totale | 1818 pi2 |
| Rez-de-chaussée | 1008 pi2 |
| Étage | 810 pi2 |
| Sous-sol aménageable | 1008 pi2 |
| Sous-sol aménagé (Optionel $) | 1008 pi2 |
| Largeur | 36'0" |
| Profondeur | 28'0" |
| Hauteur dessus fondations au faite | 28'4" |
| Murs extérieurs | 2 X 6 |
| Type de fondation | Sous-sol aménageable |
| Code Entrepreneur | E |
Spécifications sur les pièces
| Chambre(s) | 5, 2, 3, 4 |
| Salle(s) de bain complète(s) | 2 |
| Demi Salle(s) de Bain | 1 |
| Type de garage | - |
| Espace boni aménageable | - |
| Rangement boni | - |
| Estimation des coûts approx. de construction | 328,816$ à 469,737$ i |
| Surface aménagée totale | 1818 pi2 |
| Sous-sol aménagé (Optionel $) | 1008 pi2 |
| Rez-de-chaussée | 1008 pi2 |
| Étage | 810 pi2 |
| Sous-sol aménageable | 1008 pi2 |
| Largeur | 36'0" |
| Profondeur | 28'0" |
| Hauteur dessus fondations au faite | 28'4" |
| Murs extérieurs | 2 X 6 |
| Type de fondation | Sous-sol aménageable i |
Secteur activité
Note: Ces photos représentent une version modifiée, non-disponible à la vente, du plan d'origine duquel elles proviennent. Veuillez consulter l'un de nos 31 bureaux si vous souhaitez obtenir des modifications au plan d'origine de ce modèle.
Salle de bain
Note: Ces photos représentent une version modifiée, non-disponible à la vente, du plan d'origine duquel elles proviennent. Veuillez consulter l'un de nos 31 bureaux si vous souhaitez obtenir des modifications au plan d'origine de ce modèle.
Salle de bain
Note: Ces photos représentent une version modifiée, non-disponible à la vente, du plan d'origine duquel elles proviennent. Veuillez consulter l'un de nos 31 bureaux si vous souhaitez obtenir des modifications au plan d'origine de ce modèle.
Cuisine
Note: Ces photos représentent une version modifiée, non-disponible à la vente, du plan d'origine duquel elles proviennent. Veuillez consulter l'un de nos 31 bureaux si vous souhaitez obtenir des modifications au plan d'origine de ce modèle.
Chambre
Note: Ces photos représentent une version modifiée, non-disponible à la vente, du plan d'origine duquel elles proviennent. Veuillez consulter l'un de nos 31 bureaux si vous souhaitez obtenir des modifications au plan d'origine de ce modèle.
Salle à manger
Note: Ces photos représentent une version modifiée, non-disponible à la vente, du plan d'origine duquel elles proviennent. Veuillez consulter l'un de nos 31 bureaux si vous souhaitez obtenir des modifications au plan d'origine de ce modèle.
Entrée ou vestibule
Note: Ces photos représentent une version modifiée, non-disponible à la vente, du plan d'origine duquel elles proviennent. Veuillez consulter l'un de nos 31 bureaux si vous souhaitez obtenir des modifications au plan d'origine de ce modèle.
Salle de séjour
Note: Ces photos représentent une version modifiée, non-disponible à la vente, du plan d'origine duquel elles proviennent. Veuillez consulter l'un de nos 31 bureaux si vous souhaitez obtenir des modifications au plan d'origine de ce modèle.
Salle de séjour
Note: Ces photos représentent une version modifiée, non-disponible à la vente, du plan d'origine duquel elles proviennent. Veuillez consulter l'un de nos 31 bureaux si vous souhaitez obtenir des modifications au plan d'origine de ce modèle.
Vestiaire
Note: Ces photos représentent une version modifiée, non-disponible à la vente, du plan d'origine duquel elles proviennent. Veuillez consulter l'un de nos 31 bureaux si vous souhaitez obtenir des modifications au plan d'origine de ce modèle.
Vestiaire
Note: Ces photos représentent une version modifiée, non-disponible à la vente, du plan d'origine duquel elles proviennent. Veuillez consulter l'un de nos 31 bureaux si vous souhaitez obtenir des modifications au plan d'origine de ce modèle.
Secteur activité
Note: Ces photos représentent une version modifiée, non-disponible à la vente, du plan d'origine duquel elles proviennent. Veuillez consulter l'un de nos 31 bureaux si vous souhaitez obtenir des modifications au plan d'origine de ce modèle.
Description
Rez-de-chaussée: Vestiaire avec salle de lavage, cuisine, salle à manger, salon et salle d'eau. Étage: 3 chambres, salle de bain complète. Terrasse abritée à l'arrière. Plusieurs types de fondation disponibles. *Sous-sol aménagé (optionnel $): 2 chambres, salle de bain, grande salle familiale, rangement. *Si vous souhaitez acheter le plan du sous-sol aménagé, tel que présenté sur la page de ce plan, veuillez sélectionner cette option dans le panier d'achat, dans la section "Sélectionner votre fondation". Si vous ne sélectionnez pas cette option, vous recevrez le sous-sol non fini, sans frais additionnel.
Autres informations utiles sur ce plan
Plan de maison familiale proposant jusqu'à 5 chambres!
Le plan de maison BEAUSÉJOUR 5 (#4571-V3) propose 2826 pieds carrés aménagés sur 3 planchers, incluant un *sous-sol aménagé optionnel ($). Il est à noter que tous les planchers du rez-de-chaussée sont à 9' de hauteur et qu'il y a des plafonds en pente à la chambre des maîtres et également à la chambre #2.
L'entrée avant de la maison s'ouvre sur 2 étages et face à un corridor dans lequel se trouve, en retrait des aires communes, une salle d'eau. Tout de suite à gauche un grand vestiaire est disponible pour le rangement des manteaux de la famille, mais également un banc et une portion salle de lavage est localisée dans ce grand espace.
La cuisine est au fond de la maison et possède un très grand îlot, pouvant recevoir aisément 4 à 5 personnes, en plus d'un garde-manger. Ce dernier est près de l'entrée latérale de la maison, pratique pour ranger rapidement les denrées, au retour de l'épicerie! La salle de séjour est ouverte sur la salle à manger, et propose un foyer.
L'Étage regroupe la chambres des maîtres et 2 chambres secondaires. La chambre des parents inclut une grande garde-robe de type walk-in. La salle de bain regroupe un bain et une douche séparés ainsi que 2 lavabos, plutôt pratique pour les matins animés!
Le *sous-sol aménagé (optionnel $) est idéal pour les grandes familles en proposant 2 chambres additionnelles, une salle de bain complète ainsi qu'une grande salle de séjour ou salle de jeux!
Cette maison est parfaite pour les familles de 2+ enfants (ou ados) avec ses 2 salles familiales et ses 5 chambres!!
*Si vous souhaitez acheter le plan du sous-sol aménagé, tel que présenté sur la page de ce plan, veuillez sélectionner cette option dans le panier d'achat, dans la section "Sélectionner votre fondation". Si vous ne sélectionnez pas cette option, vous recevrez le sous-sol non fini, sans frais additionnel.
Éléments distinctifs
Superbe maison champêtre proposant un *sous-sol aménagé (optionnel $)!
Entrée avant ouverte sur 2 étages.
Vestiaire de grand format incluant salle de lavage.
Cuisine avec très grand îlot et garde-manger.
Salle d'eau en retrait.
Salle de séjour avec foyer.
Grand perron abrité à l'arrière.
Chambre des maître à l'étage avec walk-in.
Grande salle de bain familiale à l'étage avec bain et douche séparés.
*Sous-sol aménagé (optionnel $):
2 chambres, salle de bain, une grande salle de séjour additionnelle et rangement.
*Si vous souhaitez acheter le plan du sous-sol aménagé, tel que présenté sur la page de ce plan, veuillez sélectionner cette option dans le panier d'achat, dans la section "Sélectionner votre fondation". Si vous ne sélectionnez pas cette option, vous recevrez le sous-sol non fini, sans frais additionnel.
Notes légales
Ce modèle est protégé par la Loi sur les Droits d'Auteur.
De plus, les illustrations présentées peuvent différer du plan détaillé que vous recevrez, car ces derniers sont régulièrement ajustés afin de respecter les normes de construction en vigueur.
Autres informations utiles sur ce plan
Description complète
Plan de maison familiale proposant jusqu'à 5 chambres!
Le plan de maison BEAUSÉJOUR 5 (#4571-V3) propose 2826 pieds carrés aménagés sur 3 planchers, incluant un *sous-sol aménagé optionnel ($). Il est à noter que tous les planchers du rez-de-chaussée sont à 9' de hauteur et qu'il y a des plafonds en pente à la chambre des maîtres et également à la chambre #2.
L'entrée avant de la maison s'ouvre sur 2 étages et face à un corridor dans lequel se trouve, en retrait des aires communes, une salle d'eau. Tout de suite à gauche un grand vestiaire est disponible pour le rangement des manteaux de la famille, mais également un banc et une portion salle de lavage est localisée dans ce grand espace.
La cuisine est au fond de la maison et possède un très grand îlot, pouvant recevoir aisément 4 à 5 personnes, en plus d'un garde-manger. Ce dernier est près de l'entrée latérale de la maison, pratique pour ranger rapidement les denrées, au retour de l'épicerie! La salle de séjour est ouverte sur la salle à manger, et propose un foyer.
L'Étage regroupe la chambres des maîtres et 2 chambres secondaires. La chambre des parents inclut une grande garde-robe de type walk-in. La salle de bain regroupe un bain et une douche séparés ainsi que 2 lavabos, plutôt pratique pour les matins animés!
Le *sous-sol aménagé (optionnel $) est idéal pour les grandes familles en proposant 2 chambres additionnelles, une salle de bain complète ainsi qu'une grande salle de séjour ou salle de jeux!
Cette maison est parfaite pour les familles de 2+ enfants (ou ados) avec ses 2 salles familiales et ses 5 chambres!!
*Si vous souhaitez acheter le plan du sous-sol aménagé, tel que présenté sur la page de ce plan, veuillez sélectionner cette option dans le panier d'achat, dans la section "Sélectionner votre fondation". Si vous ne sélectionnez pas cette option, vous recevrez le sous-sol non fini, sans frais additionnel.
Éléments distinctifs
Superbe maison champêtre proposant un *sous-sol aménagé (optionnel $)!
Entrée avant ouverte sur 2 étages.
Vestiaire de grand format incluant salle de lavage.
Cuisine avec très grand îlot et garde-manger.
Salle d'eau en retrait.
Salle de séjour avec foyer.
Grand perron abrité à l'arrière.
Chambre des maître à l'étage avec walk-in.
Grande salle de bain familiale à l'étage avec bain et douche séparés.
*Sous-sol aménagé (optionnel $):
2 chambres, salle de bain, une grande salle de séjour additionnelle et rangement.
*Si vous souhaitez acheter le plan du sous-sol aménagé, tel que présenté sur la page de ce plan, veuillez sélectionner cette option dans le panier d'achat, dans la section "Sélectionner votre fondation". Si vous ne sélectionnez pas cette option, vous recevrez le sous-sol non fini, sans frais additionnel.


























