La Baie (90116)
Plan de plain-pied éco-responsable 3 chambres, vestiaire, aire ouverte au secteur activités, terrasse abritée
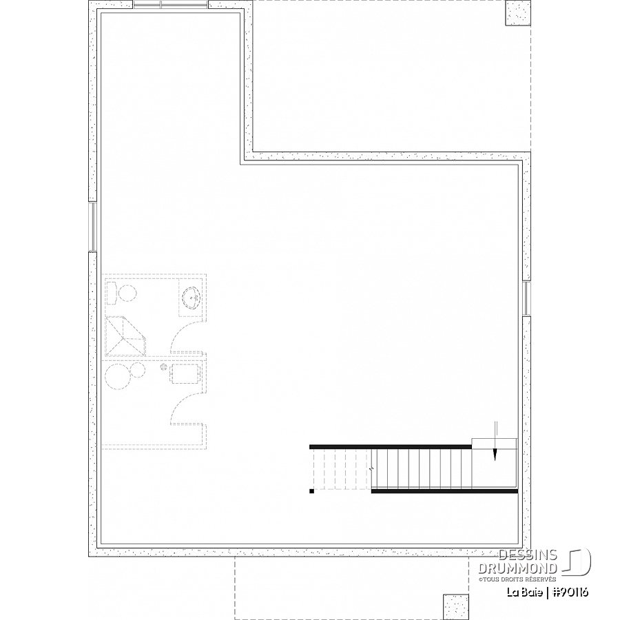
Vue par plancher
| Rez-de-chaussée | ||||
| Pièces | Dimensions | Plafond | ||
| Terrasse abritée | 22'0" x 12'0" | ~ 8'8" | ||
| Chambre à coucher | 11'8" x 11'8" | ~ 9'0" | ||
| Secteur activités | 22'0" x 14'0" | ~ 9'0" | ||
| Cuisine | 16'4" x 9'9" | ~ 9'0" | ||
| Îlot | 11'0" x 3'2" | ~ 0'0" | ||
| Garde-manger | 5'0" x 4'0" | ~ 0'0" | ||
| Chambre à coucher | 11'4" x 9'8" | ~ 9'0" | ||
| Chambre à coucher | 11'4" x 9'8" | ~ 9'0" | ||
| Entrée ou vestibule | 5'6" x 8'0" | ~ 9'0" | ||
| Vestiaire | 5'6" x 7'7" | ~ 9'0" | ||
| Pièce de mécanique | 5'0" x 5'5" | ~ 9'0" | ||
| Perron abrité | 18'6" x 5'0" | ~ 8'8" | ||
| Salle de bain | 11'4" x 12'4" | ~ 9'0" | ||
| Lingerie | 2'4" x 1'10" | ~ 0'0" | ||
| Toilette en cabine | 3'0" x 6'0" | ~ 9'0" | ||
| Salle de douche | 7'4" x 6'0" | ~ 9'0" | ||
| Garde-robe | 3'4" x 2'0" | ~ 9'0" | ||
| Salle de lavage | 5'0" x 7'7" | ~ 9'0" | ||
| Sous-sol aménageable (Optionel $) | ||||
| Rez-de-chaussée (Optionel $) | ||||
| Estimation des coûts approx. de construction | 259,858$ à 371,225$ i |
| Surface aménagée totale | 1276 pi2 |
| Rez-de-chaussée | 1276 pi2 |
| Sous-sol aménageable (Optionel $) | 1276 pi2 |
| Rez-de-chaussée (Optionel $) | 1276 pi2 |
| Largeur | 35'0" |
| Profondeur | 44'0" |
| Hauteur dessus fondations au faite | 20'2" |
| Murs extérieurs | 2 X 6 |
| Type de fondation | Dalle flottante i |
Description
Rez-de-chaussée: Entrée, vestiaire avec secteur laveuse et sécheuse, salle mécanique, 3 chambres, salle de bain, cuisine, salle à manger et salle de séjour. Terrasse abritée. *Fondation: dalle flottante incluse au plan, sans frais additionnel. *Sous sol aménageable (optionnel $): *Si vous souhaitez acheter l’option du plan de sous-sol aménageable (le plan de la maison vous sera livré avec un plan de sous-sol non fini), veuillez sélectionner cette option dans le panier d'achat, dans la section "Sélectionner votre fondation". Si vous ne sélectionnez pas cette option, vous recevrez une dalle flottante comme fondation.
Autres informations utiles sur ce plan
Description complète
Désirez-vous vous sentir en vacances au quotidien? L’abondance de lumière naturelle, l’organisation des espaces optimale et la légèreté de cette maison éco-responsable vous procureront assurément ce sentiment!
Créé pour être sur un terrain dont le sud est situé à l’arrière, la maison La Baie (plan #90116) vous offre tout ce dont une famille a besoin dans un espace maximisé. Avec ses plafonds de 9’-0’’ de haut, vous ne vous sentirez jamais à l’étroit dans cette maison. À l’entrée, vous retrouverez sur votre droite le vestiaire qui comprend un espace pour la laveuse et la sécheuse. Au fond de cette pièce se trouve l’accès pour la salle mécanique. En vous dirigeant vers l’arrière de la maison, vous entrerez dans l’aire ouverte qui baignera dans la lumière naturelle. Un grand îlot vous permettra de recevoir votre famille et vos amis tout en étant un centre de l’action. À partir de la salle à manger, vous pouvez accéder à la grande terrasse couverte située à l’arrière de la maison.
Sur tout le côté gauche de la maison, donc à l’est, vous retrouverez les chambres ainsi que la salle de bain. Les deux chambres d’enfants ont une particularité assez intéressante puisqu’elles sont conçues pour avoir un lit superposé dont chacun des lits appartient à une chambre différente. Vous bénéficiez donc de tous les avantages du lit superposé tout en conservant l’intimité de chaque chambre. Ensuite, il y a la salle de bain qui est assez grande pour permettre à plusieurs personnes de l’utiliser en même temps. Et finalement, la chambre principale est située à l’arrière de la maison avec une grande fenêtre donnant sur la cour arrière.
Cette maison offre aussi la possibilité d’ajouter un garage éventuellement sur la droite de la maison. Il serait possible d’ajouter une porte à partir de la salle mécanique pour y accéder. Aussi, vous pourriez décider d’ajouter une serre adjacente au salon du côté droit de la maison. En remplaçant la fenêtre par une porte, vous pourriez accéder à la serre et profiter de légumes frais toute l’année.
---
*L'estimation du coût de construction n'inclut pas la toiture d'acier. Elle inclut l’utilisation de bardeaux d'asphalte.
Éléments distinctifs
**Maison éco-responsable de style scandinave avec plafond à 9' de hauteur sur tout le rez-de-chaussée.
La proposition d'orientation favorise l'entrée de lumière naturelle tout au long de la journée.
L'aménagement du vestiaire inclus une laveuse et sécheuse, ainsi qu'une cuve.
Les deux chambres secondaires, bien que compactes, proposent un aménagement original de lits simples superposés, où chacun des enfants a sa propre chambre.
Belle grande fenêtre à la chambre des parents.
L'organisation de la salle de bain est pratique pour une famille en proposant deux lavabos et un bain dans la douche.
La cuisine contient un garde manger de 5' par 4' de profondeur, ainsi qu'un îlot central de grand format.
La terrasse abritée est de bon format.
La fondation incluse au plan est une dalle flottante. D'autres types de *fondation sont disponibles pour ce plan.
Ce plan est pensé afin de recevoir éventuellement un garage et une serre, selon ce qui pourrait convenir aux besoins futurs de votre famille.
L'estimation du coût de construction n'inclut pas la toiture d'acier. Elle inclut l’utilisation de bardeaux d'asphalte.
--
*Sous sol aménageable (optionnel $):
Si vous souhaitez acheter l’option du plan de sous-sol aménageable (le plan de la maison vous sera livré avec un plan de sous-sol non fini), veuillez sélectionner cette option dans le panier d'achat, dans la section "Sélectionner votre fondation". Si vous ne sélectionnez pas cette option, vous recevrez une dalle flottante comme fondation.
--
**Ce modèle fait partie de notre collection de "Plans éco-responsables" et voici ce qui distingue tous les plans inclus dans cette compilation:
SOLEIL :
L’orientation de la maison planifiée en fonction de la course quotidienne du soleil, jumelée à la captation thermique des rayons du soleil par l’utilisation d’une fenestration optimale, afin de minimiser les frais de chauffage et maximiser la présence de la lumière naturelle.
SIMPLICITÉ :
Une maison aux volumes modestes assurant une construction simplifiée, tout en favorisant la maximisation des espaces intérieurs, afin de réduire le nombre de pied carrés et le coût de construction.
SAINE :
Une habitation pensée pour favoriser le bien-être et la santé de ses occupants en étant bien ventilée, en utilisant des matériaux durables (acier, bois, revêtement léger, fibrociment, entre autres) et non toxiques et en maximisant la luminosité naturelle.
















