Country Cottage 2 (6116-V1)
Modèle de maison Farmhouse plain-pied au Québec – 3 chambres, foyer et grand garage double
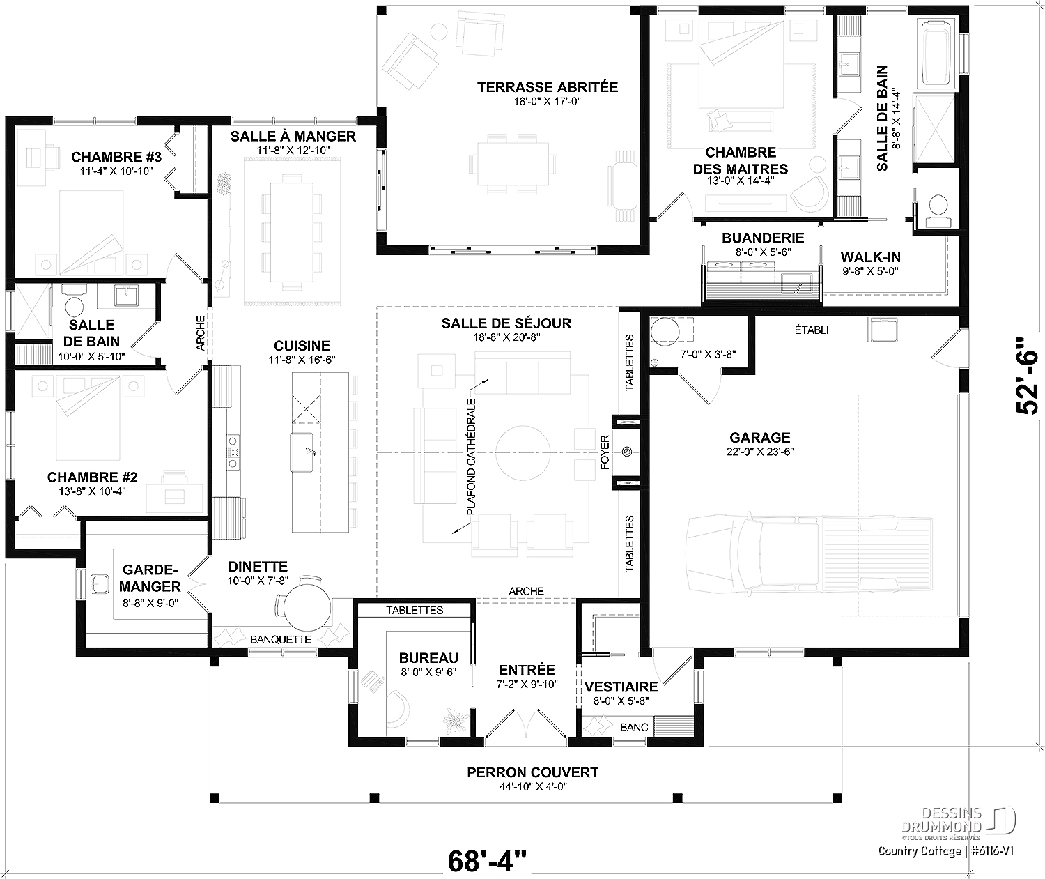
Vue par plancher
| Rez-de-chaussée | ||||
| Pièces | Dimensions | Plafond | ||
| Entrée ou vestibule | 7'2" x 9'10" | ~ 9'0" | ||
| Bureau à domicile | 8'0" x 9'6" | ~ 9'0" | ||
| Vestiaire | 8'0" x 5'8" | ~ 9'0" | ||
| Garde-robe | 4'2" x 3'6" | ~ 9'0" | ||
| Garage | 22'0" x 23'6" | ~ 9'6" | ||
| Rangement | 7'0" x 3'8" | ~ 9'6" | ||
| Salle de séjour | 18'8" x 20'8" | ~ 19'0" | ||
| Terrasse abritée | 18'0" x 17'0" | ~ 9'4" | ||
| Terrasse | 18'0" x 7'2" | ~ 0'0" | ||
| Salle à manger | 11'8" x 12'10" | ~ 9'0" | ||
| Chambre à coucher | 11'4" x 10'10" | ~ 9'0" | ||
| Garde-robe | 4'10" x 2'0" | ~ 9'0" | ||
| Chambre à coucher | 13'8" x 10'4" | ~ 9'0" | ||
| Garde-robe | 4'8" x 2'0" | ~ 9'0" | ||
| Salle de bain | 10'0" x 5'10" | ~ 9'0" | ||
| Douche | 4'0" x 2'8" | ~ 0'0" | ||
| Lingerie | 1'6" x 2'8" | ~ 0'0" | ||
| Dinette | 10'0" x 7'8" | ~ 9'0" | ||
| Cuisine | 11'8" x 16'6" | ~ 9'0" | ||
| Îlot | 11'4" x 4'0" | ~ 0'0" | ||
| Suite des maîtres | 13'0" x 14'4" | ~ 9'0" | ||
| Salle de bain complète | 14'4" x 8'8" | ~ 9'0" | ||
| Toilette en cabine | 3'0" x 4'4" | ~ 9'0" | ||
| Douche | 5'0" x 3'0" | ~ 0'0" | ||
| Lingerie | 1'6" x 1'8" | ~ 0'0" | ||
| Lingerie | 1'6" x 1'8" | ~ 0'0" | ||
| Walk-in | 9'8" x 5'0" | ~ 9'0" | ||
| Salle de lavage | 8'0" x 5'6" | ~ 9'0" | ||
| Perron abrité | 44'10" x 4'0" | ~ 9'4" | ||
| Garde-manger | 8'8" x 9'0" | ~ 9'0" | ||
Description
Rez-de-chaussée: Entrée, vestiaire, bureau, cuisine, dinette, garde-manger, salle à manger, salle de séjour, suite des parents avec salle de bain privée et walk-in, salle de lavage, 2 chambres additrionnelles et une salle de douche. Terrasse arrière abritée. Garage double latéral, comportant salle mécanique et coin établi. Fondation: dalle flottante. Autres types de fondation disponibles ($)
Autres informations utiles sur ce plan
Description complète
Plan de maison Farmhouse plain-pied moderne au Québec avec 3 chambres, garage double et foyer
Ce plan de maison de style Farmhouse marie à merveille l’élégance intemporelle et le confort moderne. Conçu sous forme de plain-pied lumineux, il propose 3 chambres au rez-de-chaussée, un choix idéal pour les familles qui souhaitent profiter de la praticité d’un seul niveau sans compromis sur le style et la fonctionnalité.
À l’avant, un superbe grand perron couvert ajoute charme et fonctionnalité, créant un espace accueillant et convivial pour recevoir vos invités en toute saison. L’entrée avant s’ouvre élégamment sur un bureau lumineux, idéal comme espace de travail ou pièce polyvalente. Elle mène également vers un vestiaire pratique, accessible depuis le garage, regroupant un walk-in bien organisé et un banc intégré qui facilite le quotidien.
À l’arrière, une terrasse abritée vous invite à savourer des moments conviviaux en plein air, que ce soit sous un soleil éclatant ou à l’abri des intempéries. Le garage double latéral se distingue par son espace mécanique dédié et son coin établi pratique, ajoutant à la fois commodité et polyvalence au quotidien.
La suite des parents, sur la droite, est un véritable refuge, offrant un walk-in spacieux et une salle de bain privée raffinée. Celle-ci comprend une vanité double, un bain autoportant et une douche séparée, créant une ambiance digne d’une suite d’hôtel. À cela s’ajoute un détail pratique et ingénieux : un accès direct à la salle de lavage depuis le walk-in, simplifiant la gestion du quotidien.
Les deux autres chambres, sur la gauche, parfaitement adaptées pour les enfants ou les invités, partagent une salle de bain fonctionnelle avec douche, assurant confort et efficacité pour toute la famille.
Au cœur de la maison, la cuisine conviviale se distingue par son très grand îlot central (11'0'' x 4'x0'') et son garde-manger bien pensé (8'8'' x 9'0''). Cet espace a été conçu pour répondre à toutes les situations : repas rapides en semaine, brunchs familiaux ou soirées entre amis. La petite dinette avec banquette apporte une touche charmante et pratique, parfaite pour savourer un café tranquille ou pour les petits déjeuners en famille.
La salle de séjour spectaculaire, avec son plafond cathédrale d'une hauteur maximale de 19'0'', offre une impression d’espace et de luminosité inégalée. Partout ailleurs, les plafonds à 9’ renforcent l’élégance et la modernité de l’ensemble. Le salon chaleureux, agrémenté d’un foyer avec tablettes de chaque côté, devient quant à lui le cœur douillet de la maison, idéal pour les soirées d’hiver ou les moments de détente en toute saison.
Reposant sur une fondation sur dalle flottante, ce modèle propose également d’autres options de fondation afin de s’adapter aux besoins spécifiques et au terrain choisi. Cette flexibilité permet d’imaginer cette maison aussi bien dans un cadre urbain que sur un terrain de campagne, près de la nature.
Avec son style Farmhouse qui combine authenticité, raffinement et modernité, ce plain-pied se démarque comme un choix inspirant pour les familles d’aujourd’hui. Fonctionnelle, lumineuse et chaleureuse, cette maison représente l’équilibre parfait entre design intelligent et qualité de vie.
Éléments distinctifs
Plan de maison de style Farmhouse, alliant élégance classique et confort moderne.
Plain-pied lumineux offrant 3 chambres au rez-de-chaussée, idéal pour les familles.
Superbe grand perron avant couvert, idéal pour accueillir vos invités en toute saison.
L’entrée avant s’ouvre sur un bureau et mène aussi vers un vestiaire accessible depuis le garage, comprenant un walk-in et un banc pratique.
Suite des parents avec walk-in, salle de bain privée raffinée, incluant une vanité double, un bain autoportant et une douche séparée.
Accès pratique à la salle de lavage par la walk-in de la chambre des parents.
Salle de bain fonctionnelle avec douche, partagée par les 2 chambres additionnelles.
Cuisine conviviale avec garde-manger pratique et grand îlot central pensé autant pour le quotidien que pour recevoir.
Petite dinette avec banquette, parfaite pour les matins détendus.
Salle de séjour spectaculaire avec plafond cathédrale, apportant volume et lumière; plafonds à 9’ dans toutes les autres pièces.
Salon chaleureux avec foyer, créant une atmosphère accueillante en toute saison.
Terrasse arrière abritée, idéale pour profiter de moments conviviaux en plein air, beau temps comme mauvais temps.
Garage double latéral offrant un espace mécanique dédié ainsi qu’un coin établi pratique.
Fondation sur dalle flottante, avec d’autres options disponibles pour s’adapter à vos besoins.


